






















Gewerbeensemble mit Hallen- und Büroflächen auf ca. 3.992 m² Grundstück
Objektart
Hallen/Lager/Produktion
Objekttyp
Halle
Vermarktungsart
Kauf
PLZ
26135
Ort
Oldenburg
ImmoNr
69 414
Anzahl Zimmer
5
Kaufpreis
995.000,00 €
Baujahr
1992
Energieausweis
es besteht keine Pflicht!
Vermittlungsgebühr
3,57 % inkl. ges. MwSt.
Diese besondere Gewerbeeinheit in Osternburg liegt auf einem großzügigen Grundstück von ca. 3.992 m² und umfasst ein Haupt- sowie ein Nebengebäude. Errichtet zwischen 1992 und 2000, präsentiert sich die Immobilie in einem altersgerechten, gepflegten Zustand. Regelmäßige Instandhaltungsmaßnahmen in den vergangenen Jahren tragen zur Werterhaltung bei: So wurde das Dach vor rund drei Jahren geprüft und instand gesetzt, der Außenanstrich vor etwa sechs Jahren erneuert und zwei Heizungen in den letzten zwei Jahren ersetzt.
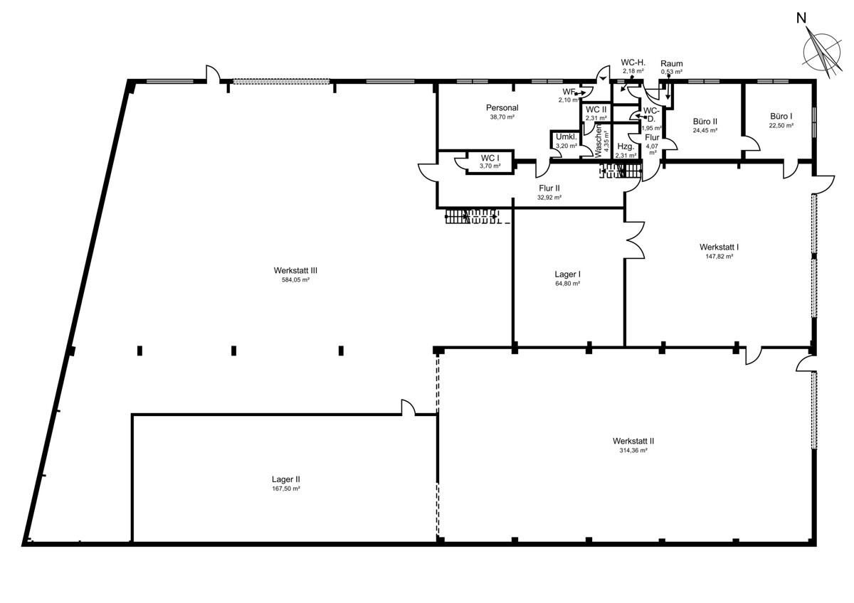
Das Hauptgebäude bietet eine Gesamtnutzfläche von ca. 1.506 m², verteilt auf Erd- und Dachgeschoss. Die Flächen gliedern sich in Bürobereiche, Lagerräume, Werkstatt, mehrere WCs, Waschraum, Umkleideraum sowie einen Personalraum. Seit 2008 ist das Objekt an die Walter Theilen GmbH vermietet. Der bestehende Mietvertrag läuft über fünf Jahre mit einer Kündigungsfrist von zwölf Monaten; die nächste Kündigungsmöglichkeit besteht zum 31.12.2025 (alternativ 31.12.2026). Die monatliche Nettokaltmiete beträgt 3.500 € zzgl. MwSt.
Das Nebengebäude verfügt über eine Gesamtnutzfläche von ca. 256 m², ebenfalls aufgeteilt in Erd- und Dachgeschoss. Hier befinden sich Büros, eine Teeküche, WCs sowie eine Halle. Dieses Gebäude ist derzeit leerstehend.
Die jährlichen Mieteinnahmen (IST) belaufen sich auf rund 42.000 €. Mit seinen flexibel nutzbaren Flächen, dem soliden Instandhaltungszustand und einem langjährigen Hauptmieter stellt diese Gewerbeimmobilie eine attraktive und nachhaltige Investitionsmöglichkeit im begehrten Stadtteil Osternburg dar.
Das Hauptgebäude bietet eine Gesamtnutzfläche von ca. 1.506 m², verteilt auf Erd- und Dachgeschoss. Die Flächen gliedern sich in Bürobereiche, Lagerräume, Werkstatt, mehrere WCs, Waschraum, Umkleideraum sowie einen Personalraum. Seit 2008 ist das Objekt an die Walter Theilen GmbH vermietet. Der bestehende Mietvertrag läuft über fünf Jahre mit einer Kündigungsfrist von zwölf Monaten; die nächste Kündigungsmöglichkeit besteht zum 31.12.2025 (alternativ 31.12.2026). Die monatliche Nettokaltmiete beträgt 3.500 € zzgl. MwSt.
Das Nebengebäude verfügt über eine Gesamtnutzfläche von ca. 256 m², ebenfalls aufgeteilt in Erd- und Dachgeschoss. Hier befinden sich Büros, eine Teeküche, WCs sowie eine Halle. Dieses Gebäude ist derzeit leerstehend.
Die jährlichen Mieteinnahmen (IST) belaufen sich auf rund 42.000 €. Mit seinen flexibel nutzbaren Flächen, dem soliden Instandhaltungszustand und einem langjährigen Hauptmieter stellt diese Gewerbeimmobilie eine attraktive und nachhaltige Investitionsmöglichkeit im begehrten Stadtteil Osternburg dar.
Lage
Das Gewerbeobjekt befindet sich im Oldenburger Stadtteil Osternburg, einem etablierten und gewerblich geprägten Standort mit vielseitiger Nutzung. Die Lage zeichnet sich durch eine sehr gute Erreichbarkeit und eine funktionale Infrastruktur aus. Hauptverkehrsstraßen sind in wenigen Minuten erreichbar, sodass Lieferverkehr, Mitarbeiter und Kunden problemlos an- und abfahren können.Das Umfeld ist geprägt von Handwerks-, Produktions- und Gewerbebetrieben, wodurch sich vielfältige Synergien mit angrenzenden Unternehmen ergeben. Durch die zentrale Lage innerhalb von Osternburg bestehen zudem kurze Wege in die Oldenburger Innenstadt sowie zu weiteren Gewerbegebieten der Stadt.
Die Anbindung an den öffentlichen Personennahverkehr ist fußläufig gegeben, mehrere Buslinien verbinden den Standort direkt mit der Innenstadt und anderen Stadtteilen. Auch die Versorgungseinrichtungen des täglichen Bedarfs sowie technische Dienstleister und Handwerksbetriebe befinden sich in unmittelbarer Umgebung.
Der Standort bietet damit ideale Voraussetzungen für Gewerbebetriebe mit Bedarf an Lager-, Produktions- oder Büroflächen – ein Standort mit gewachsenem Gewerbeumfeld, guter Infrastruktur und nachhaltiger Perspektive im wirtschaftsstarken Stadtteil Osternburg.
Ausstattung
Einen ersten Eindruck des Objektes erhalten Sie in folgendem Video: Link folgtSonstige Angaben
Bitte haben Sie Verständnis, dass wir nur Anfragen mit vollständig angegebenem Namen, Adresse und Telefonnummer bearbeiten können.Sämtliche Fotos, Texte und grafische Darstellungen (Grundrisse) sind Eigentum von der Firma KAVEH Immobilien und dürfen nicht von Dritten verwendet oder weitergegeben werden.
Es gelten unsere Allgemeinen Geschäftsbedingungen.
Alle Angaben sind ohne Gewähr und basieren ausschließlich auf Informationen, die uns von unserem Auftraggeber zur Verfügung gestellt wurden. Wir übernehmen keine Gewähr für die Vollständigkeit, Richtigkeit und Aktualität dieser Angaben.























