







Einmalige Gelegenheit: vermietete Gewerbefläche mit seltener Spielothekenlizenz
Objektart
Zins und Renditeobjekt
Objekttyp
Gewerbeeinheit
Vermarktungsart
Kauf
PLZ
26122
Ort
Oldenburg (Oldenburg)
ImmoNr
69 271
Kaufpreis
589.000,00 €
Baujahr
1983
Endenergiebedarf
225,6 kWh/(m²a)
Energieausweis
Bedarfsausweis Gewerbe
Energieausweis bis
03.12.2028
Energieeffizienzklasse
G
wesentlicher Energieträger
Gas
vermarktungsstatus
Neu
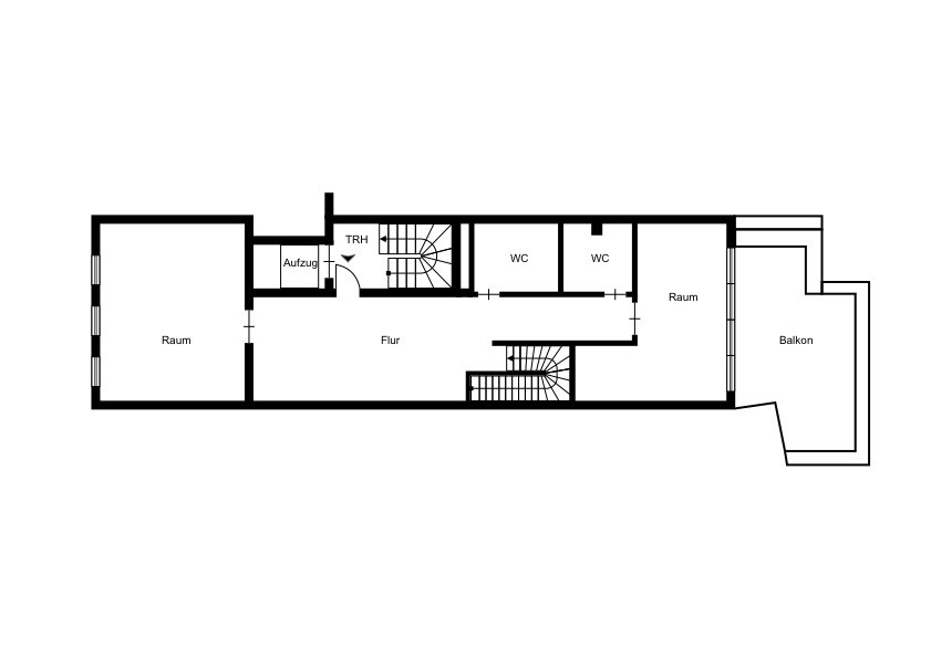
In absoluter Innenstadtlage von Oldenburg steht diese ca. 300 m² große, offen gestaltete Gewerbefläche zum Verkauf. Sie erstreckt sich über das Kellergeschoss, Erdgeschoss und das 1. Obergeschoss eines gepflegten Wohn- und Geschäftshauses in der Staustraße und bietet durch ihre zentrale Lage eine hervorragende Sichtbarkeit und Erreichbarkeit. Das Erdgeschoss verfügt über einen großzügigen Empfangsbereich mit direktem Straßenzugang. Über eine innenliegende Treppe gelangt man in das Obergeschoss, in dem sich mehrere Büro- oder Aufenthaltsräume sowie separate WC-Anlagen für Damen und Herren befinden.
Aktuell ist die Fläche an eine Spielothek vermietet. Die monatliche Nettokaltmiete beträgt 2.670,99 €, was einer Jahresnettokaltmiete von rund 32.051,88 € entspricht. Besonders hervorzuheben ist, dass die Spielothekenlizenz an das Gebäude gebunden ist. Solche objektgebundenen Lizenzen sind extrem selten und in der Oldenburger Innenstadt kaum noch zu finden – ein klarer Vorteil für Investoren, die auf nachhaltige Mieteinnahmen setzen.
Zum Gebäude gehört außerdem eine abgeschlossene Tiefgarage, die über einen KFZ-Aufzug erreichbar ist. Insgesamt stehen 9 Stellplätze zur Verfügung, von denen aktuell noch 5 separat zum Preis von je 25.000 € erworben werden können.
Diese Immobilie verbindet eine exzellente Lage mit stabiler Vermietung und einem einmaligen Nutzungsvorteil – ideal für Kapitalanleger, die Wert auf Standortqualität und Bestandssicherheit legen.
Aktuell ist die Fläche an eine Spielothek vermietet. Die monatliche Nettokaltmiete beträgt 2.670,99 €, was einer Jahresnettokaltmiete von rund 32.051,88 € entspricht. Besonders hervorzuheben ist, dass die Spielothekenlizenz an das Gebäude gebunden ist. Solche objektgebundenen Lizenzen sind extrem selten und in der Oldenburger Innenstadt kaum noch zu finden – ein klarer Vorteil für Investoren, die auf nachhaltige Mieteinnahmen setzen.
Zum Gebäude gehört außerdem eine abgeschlossene Tiefgarage, die über einen KFZ-Aufzug erreichbar ist. Insgesamt stehen 9 Stellplätze zur Verfügung, von denen aktuell noch 5 separat zum Preis von je 25.000 € erworben werden können.
Diese Immobilie verbindet eine exzellente Lage mit stabiler Vermietung und einem einmaligen Nutzungsvorteil – ideal für Kapitalanleger, die Wert auf Standortqualität und Bestandssicherheit legen.
Lage
Die Gewerbefläche befindet sich in der Staustraße, einer stark frequentierten Verbindungsstraße mitten in der Oldenburger Innenstadt. Diese zentrale Lage bietet optimale Voraussetzungen für Gewerbebetriebe, die von Laufkundschaft, Sichtbarkeit und hervorragender Erreichbarkeit profitieren möchten. Die Staustraße verbindet wichtige Innenstadtbereiche miteinander und liegt nur wenige Gehminuten vom Oldenburger Schloss, der Fußgängerzone sowie dem Lappan entfernt – einem der markantesten Knotenpunkte der Stadt.Die infrastrukturelle Anbindung ist ausgezeichnet: Der Hauptbahnhof ist in wenigen Minuten zu Fuß erreichbar, ebenso wie zahlreiche Bushaltestellen und Parkhäuser. Auch die Autobahnanbindung über die A28 und A29 ist schnell erreichbar, was den Standort zusätzlich für Kunden und Geschäftspartner attraktiv macht. In direkter Umgebung befinden sich zahlreiche Einzelhandelsgeschäfte, Cafés, Restaurants, Arztpraxen und Büroeinheiten, was das Umfeld lebendig und vielseitig macht.
Die Kombination aus zentraler Innenstadtlage, hohem Publikumsverkehr und guter Erreichbarkeit macht diese Immobilie zu einem gefragten Standort – sowohl für Mieter als auch für Investoren mit Weitblick.
Ausstattung
– ca. 200 m² Gewerbefläche auf zwei Etagen (EG + 1. OG)– ca. 100 m² zusätzliche Lagerfläche im Untergeschoss
– Objektgebundene Spielotheken-Lizenz – seltene Sondergenehmigung
– Tiefgarage mit KFZ-Aufzug, 5 Stellplätze optional erwerbbar
Sonstige Angaben
Bitte haben Sie Verständnis, dass wir nur Anfragen mit vollständig angegebenem Namen, Adresse und Telefonnummer bearbeiten können.Sämtliche Fotos, Texte und grafische Darstellungen (Grundrisse) sind Eigentum von der Firma KAVEH und dürfen nicht von Dritten verwendet oder weitergegeben werden.
Es gelten unsere Allgemeinen Geschäftsbedingungen.
Alle Angaben sind ohne Gewähr und basieren ausschließlich auf Informationen, die uns von unserem Auftraggeber zur Verfügung gestellt wurden. Wir übernehmen keine Gewähr für die Vollständigkeit, Richtigkeit und Aktualität dieser Angaben.
Wir stehen Ihnen mit weiteren Informationen zur Immobilie, sowie für Besichtigungen gerne zur Verfügung.








